TEL 0282-21-2452
受付時間 : 栃木市役所開庁日の8:30~17:15
メニューを閉じる

【No.1061】閑静な住宅街にある2階建て一軒家

No.1061

閑静な住宅街にある2階建て一軒家です。スーパー、コンビニエンスストア、小学校、公園、医療機関などに近く、生活の利便性の高い好立地の物件です。

※価格の変更がありました

 

キッチンキッチン
和室①和室①
和室②和室②
トイレトイレ
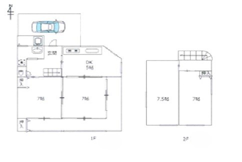
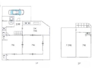
間取図間取図

契約形態

契約形態 一戸建て(売買)登録地区 栃木地域
売買価格 480万円賃貸価格 -

物件の概要

所在地 栃木県栃木市箱森町
築年月 1983年構造 木造セメント瓦葺2階建て
敷金 -礼金 -
延床面積 73.69m2敷地面積 181.39m2
間取り 4DK補修 -

設備状況

ガス プロパン台所 あり
水道 公営水道下水道 接続済み
風呂 ありトイレ 水洗
物置 -駐車場 1台

主要施設

小学校区 栃木第三小学校 1.1㎞
中学校区 栃木東中学校 2.1㎞
最寄駅 新栃木駅 2.0㎞
栃木市役所 本庁舎 2.4㎞
病院 とちぎメディカルセンターとちのき 0.9㎞

お問い合わせ

お問い合わせ先 栃木市役所 都市建設部建築住宅課
TEL 0282-21-2452
FAX 0282-21-2676
このページの先頭に戻る