TEL 0282-21-2452
受付時間 : 栃木市役所開庁日の8:30~17:15
メニューを閉じる

【No.1091】店舗・畑・ガレージなどさまざまな機能を備えた2階建て一軒家

店舗・畑・ガレージ・プレハブ小屋・多数の居室などさまざまな機能を備え、幅広な活用を見込める2階建て一軒家です。幹線道路や高速道路のインターチェンジに近く、多方面へのアクセスが良好であるため、生活の利便性の高い好立地の物件です。

この物件は交渉中です

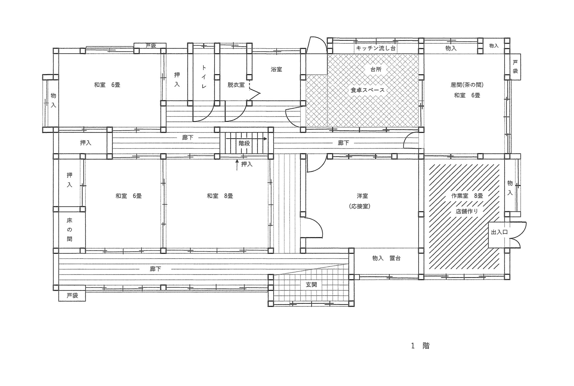
間取り図(1階)間取り図(1階)
間取り図(2階)間取り図(2階)
和室①和室①
和室②和室②
和室③和室③
和室④和室④
洋室①洋室①
洋室②洋室②
キッチンキッチン
風呂風呂
トイレトイレ
縁側縁側
店舗店舗
外観(店舗入口側)外観(店舗入口側)
ガレージ①ガレージ①
ガレージ②ガレージ②
プレハブプレハブ
庭(畑)庭(畑)

契約形態

契約形態 一戸建て(売買)登録地区 西方地域
売買価格 700万円賃貸価格 -

物件の概要

所在地 栃木県栃木市西方町本郷
築年月 1975年構造 木造瓦葺2階建て
敷金 -礼金 -
延床面積 169.77m2敷地面積 774.91m2
間取り 8DK補修 -

設備状況

ガス プロパン台所 あり
水道 公営水道下水道 接続済み(農業集落排水)
風呂 ありトイレ 水洗
物置 -駐車場 4台

主要施設

小学校区 西方小学校 1.1㎞
中学校区 西方中学校 0.8㎞
最寄駅 東武金崎駅 2.3㎞
栃木市役所 西方総合支所 1.8㎞
病院 個人医院 1.1㎞

お問い合わせ

お問い合わせ先 栃木市役所 都市建設部建築住宅課
TEL 0282-21-2452
FAX 0282-21-2676

この物件は交渉中です

このページの先頭に戻る