TEL 0282-21-2452
受付時間 : 栃木市役所開庁日の8:30~17:15
メニューを閉じる

【No.1099】自然豊かな環境が魅力な2階建て一軒家

No.1099

緑に囲まれた日当たり良好な2階建て一軒家です。部屋数も多く、様々な用途での利用が可能です。
のどかな雰囲気を感じながら田舎暮らしができる物件です。

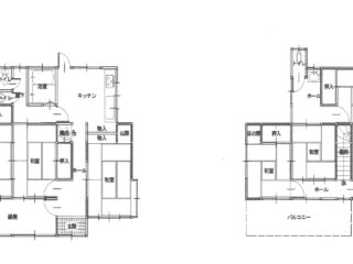
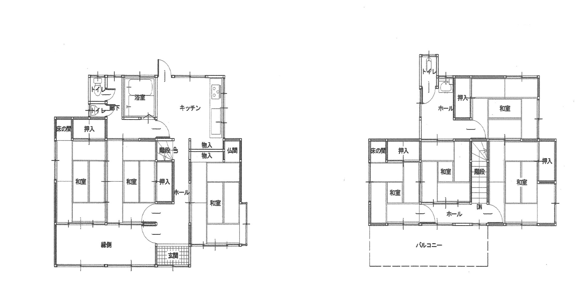
間取図間取図
和室①和室①
和室②和室②
風呂風呂
キッチンキッチン
縁側縁側
バルコニーバルコニー
1階トイレ1階トイレ
2階トイレ2階トイレ

契約形態

契約形態 一戸建て(売買)登録地区 栃木地域
売買価格 500万円賃貸価格 -

物件の概要

所在地 栃木県栃木市鍋山町
築年月 1969年構造 木造亜鉛メッキ鋼板ぶき2階建て
敷金 -礼金 -
延床面積 128.95m2敷地面積 231.38m2
間取り 7DK補修 -

設備状況

ガス プロパン台所 あり
水道 井戸水下水道 汲取り
風呂 ありトイレ 簡易水洗
物置 -駐車場 2台(車種制限等有)

主要施設

小学校区 寺尾小学校 1.3km
中学校区 栃木北中学校 8.2km
最寄駅 新栃木駅 12.8km
栃木市役所 本庁舎 12.7km
病院 個人医院 7.7km

お問い合わせ

お問い合わせ先 栃木市役所 都市建設部建築住宅課
TEL 0282-21-2452
FAX 0282-21-2676
このページの先頭に戻る